仲介手数料無料!約97万円お得です!&10万円キャッシュバック/狭山市水野44期・新築一戸建て/2,890万円/入曽駅

0 会員登録

仲介手数料無料+10万円キャッシュバック/狭山市水野44期・新築一戸建て/2,890万円/入曽駅

仲介手数料無料!約97万円お得です!&10万円キャッシュバック/狭山市水野44期・新築一戸建て/2,890万円/入曽駅

所在地 埼玉県狭山市水野228-1
交通 西武新宿線 入曽駅 徒歩12分
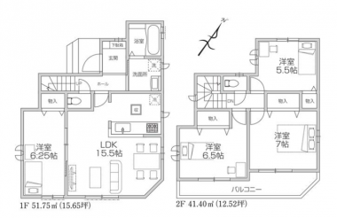
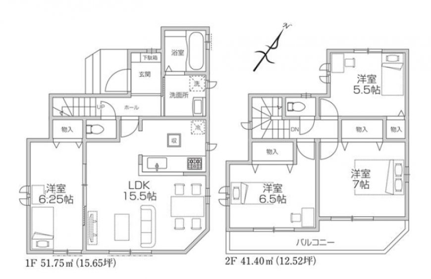
間取り/建物面積4LDK / 93.15m²
価格 2,890万円
構造/階/築年木造 / 2階建 / 2026年1月
土地面積/土地権利 100.79m²(公簿) / 所有権
建蔽率/容積率70% / 200%
都市計画/用途地域市街化調整区域 / 無指定
地目/地勢宅地/平坦 私道負担:- -
接道/セットバック北側4.60m公道 / 西側4.00m私道 / - -
コメント不動産ランド所沢なら仲介手数料無料!&さらにキャッシュバック制度あり。是非!お気軽にお問合せ下さい。
現況・引渡完成済み 相談
情報更新日2026年04月12日
情報有効期限2026年04月26日
取引態様仲介
 
設備条件/設備備考仲介手数料ゼロ / システムキッチン / 対面キッチン / 浄水器 / 追い炊き / トイレ2ケ所 / バス1坪以上 / シャンプードレッサー / 洗浄便座 / 24時間換気システム / 床下収納 / TVドアホン付き / 駐車場有り / EV車充電設備 / 値下げ物件 / フラット35 / ガス(個別プロパン) /
 
仲介手数料無料+10万円キャッシュバック/狭山市水野44期・新築一戸建て/2,890万円/入曽駅お問い合わせ先
会社名ティエラ・アールイー株式会社
住所埼玉県所沢市北中3-52-17
TEL04-2968-4110
物件番号0083-00006336

この物件の周辺環境マップ

この物件にメールでお問い合わせ

Copyright (C) ティエラ・アールイー株式会社